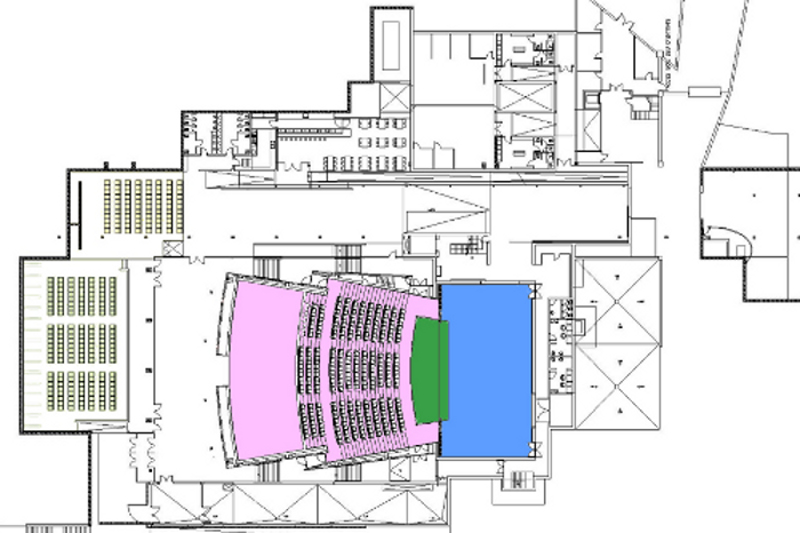
Amphithéâtre principal

Vous êtes ici : Accueil / FR / Découvrez Salou / Que trouverez-vous? / Congrès / Amphithéâtre principal
540 m2
530/579 personnes
4,50 m / 7,30 m – Fosse d’orchestre 1,20 m
JPEG image icon Carte Amphithéâtre.jpg — Image JPEG, 162 ko (165916 bytes)

Équipement :

Accès personnes à mobilité réduite (salle et scène)
Accès véhicules (scène)
Service de traduction simultanée disponible
Vidéoconférence
Climatisation
Lumière naturelle
Écran de 4,5 x 6 m

La salle présente une légère pente et une faible profondeur afin de garantir une visibilité optimale à tous les spectateurs.  La salle est équipée d’une avant-scène mobile sur vérin hydraulique (trois hauteurs).