Vestíbul connexió

Sou a: Inici / CA / Descobreix Salou / Què trobaràs? / Congressos / Vestíbul connexió
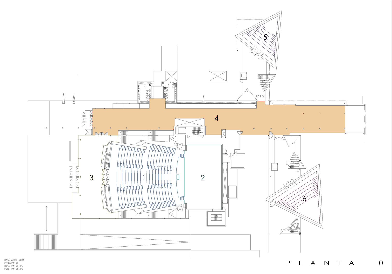
476 m2
200 persones (teatre) / 300 persones (banquet) / 400 persones (recepció)
3,40m / 7,00m
JPEG image icon Vestíbul_connexió__plànol.jpg — JPEG image, 351 KB (359458 bytes)

Equipament:

Accés discapacitats
Accés rodat
Espai divisible
Videoconferència
Zona d’exposició
Zona de càtering
Aire condicionat
Llum natural

Carrer cobert que connecta la planta baixa dels 4 equipaments del conjunt: Escola Municipal de Música, Centre Cívic, Ajuntament i Teatre Auditori.  En aquesta zona s’hi troben tots els serveis comuns, com ara informació i venda d’entrades.