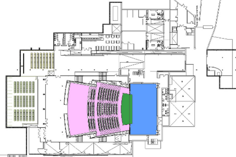
Auditorium

You are here: Home / EN / Discover Salou / What you’ll find / Conferences / Auditorium
540 m2
530 / 579 people
4.50m / 7.30m – Orchestra pit 1.20m
JPEG image icon Map Auditorium.jpg — JPEG image, 162 KB (165916 bytes)

Facilities / Equipment:

Handicapped access (to auditorium and stage)
Vehicle access (to stage)
Simultaneous interpretation (must be booked in advance)
Videoconferencing
Air conditioning
Natural light
6 x 4.5 metre screen included

Its layout with a slope, together with the hall’s lack of depth, guarantees that the entire audience has an unimpeded view of the stage. The auditorium has a hydraulic platform attached to the opening of the stage, which is adjustable to three different heights.